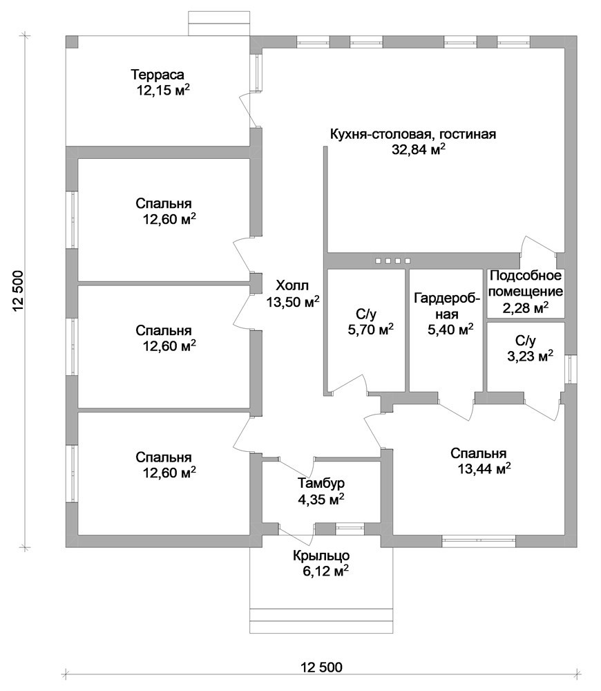
Проект дома B-293
Дом одноэтажный до 150 м
-
Площадь, м2136,81
-
Этажностьодноэтажные
-
Количество спаленс четырьмя спальнями и более
-
Террасас террасой
-
Материалыиз блоков
План дома B-293
- Фундамент: глубина 1,5 м, ленточный или блоки ФБС
- Цоколь: высота 0,45 м, фундаментный кирпич, блоки, монолит
- Наружные стены: толщина 300 мм, пенобетон/газобетон
- Внутренние стены: пенобетон/газобетон, кирпич
- Высота 1-го этажа: 3,1 м
- Перекрытия 1-го этажа: по деревянным балкам
- Кровля: битумная черепица, металлочерепица
- Наружная отделка стен: декоративная штукатурка, дерево
- Наружная отделка цоколя: декоративная штукатурка
- Ширина дома: 12,5 м
- Длина дома: 12,5 м
- Высота дома от уровня пола 1-го этажа: 7,0 м
